War Torn
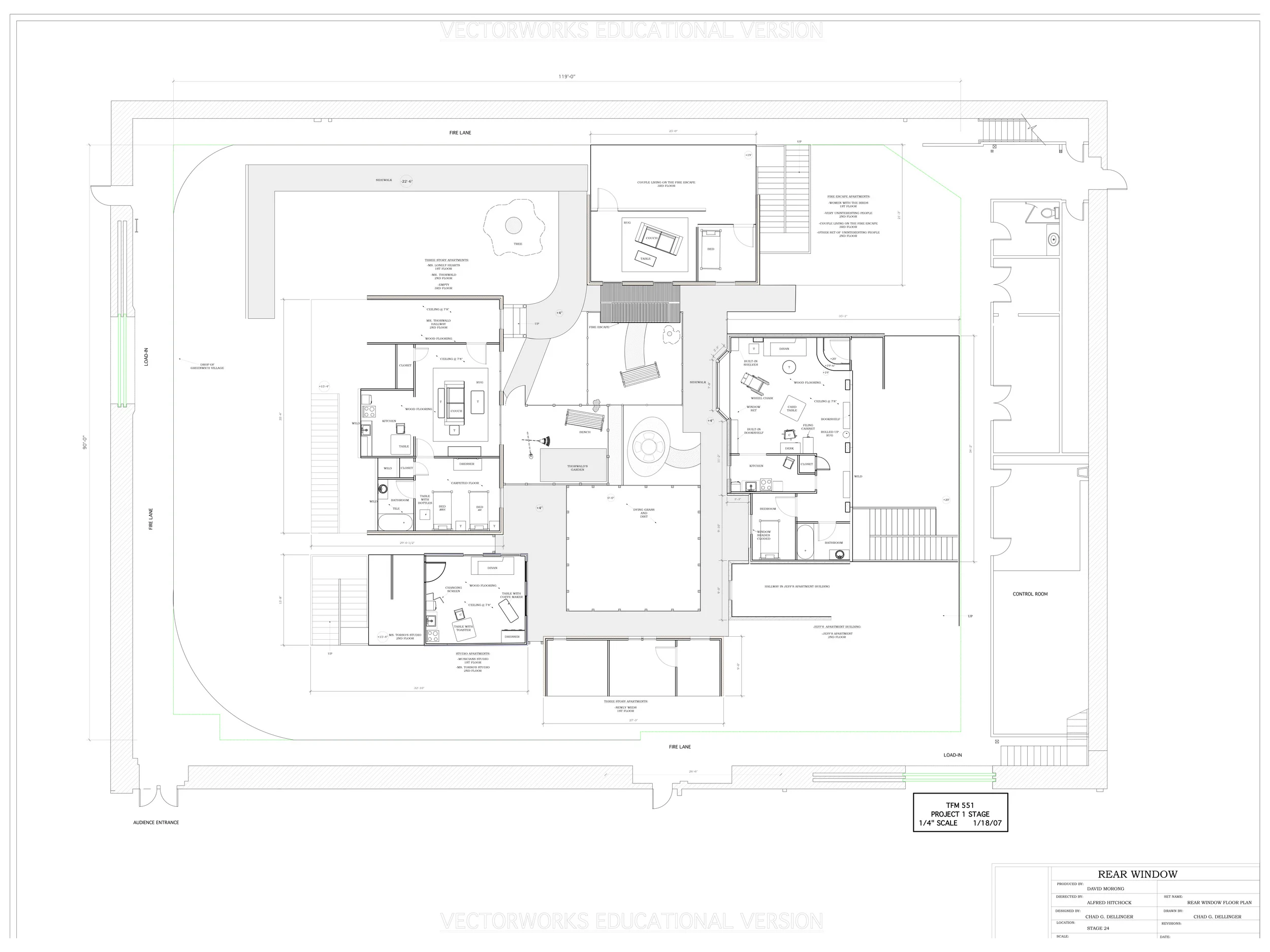
Rear Window
Pink Lady
Pink Lady
prev / next